ข้อเปรียบเทียบคุณสมบัติระหว่างโครงคร่าวทีบาร์เหล็กชุบสังกะสี ตราช้าง และโครงทีบาร์อะลูมิเนียม
ลักษณะทั่วไป : โครงคร่าวเหล็กชุบสังกะสีลักษณะโดยทั่วไปมีสีขาวดูกลมกลืนกับแผ่นฝ้าได้ดี (กรณี ใช้แผ่นสำเร็จรูป หรือทาสีขาวบนแผ่น) ส่วนโครคร่าวทีบาร์อะลูมิเนียม สีจะเป็นสีเงิน
การเกิดสนิม : โครงคร่าวเหล็กชุบสังกะสีใช้ชั้นเคลือบสังกะสีเป็นตัวป้องกันการเกิดสนิมบนเนื้อเหล็กซึ่งในกรณีเมื่อชั้นเคลือบสังกะสีกันสนิม ถูกกัดกร่อยจนหมด สนิมของเหล็กจะเป็นสีน้ำตาลแดง แต่ในอลูมิเนียมจะเป็นสีขาวสังเกตได้ยากกว่าสนิมเหล็ก แต่เมื่อเกิดสนิมไปมากๆ อาจทำให้โครงไม่ปลอดภัยในการรับน้ำหนัก โดยยังไม่ทันสังเกตเห็นได้
ความแข็งแรง/น้ำหนัก : โครงคร่าวทีบาร์เหล็กชุบสังกะสีจะแข็งแรงกว่าโครงคร่าวที่ผลิตจากอะลูมิเนียมที่ความหนาเท่ากัน ทำให้ที่ข้อกำหนดการรับแรงที่เท่ากันนั้น การใช้โครงคร่าวที่ทำจากเหล็กชุบสังกะสีจะประหยัดกว่า กรณีที่ต้องมีการเปิดปิดแผ่นฝ้าเพื่อการ Service การใช้โครงคร่าวเหล็กจะเกิดความเสียหายน้อยกว่าในระยะยาว ซึ่งส่วนของโครงคร่าวทีบาร์อะลูมิเนียมจะมีน้ำหนักของวัสดุต่อหน่วยที่เบากว่า แต่ต้องมีความหนาประมาณ 1 มม. ขึ้นไปเพื่อปลอดภัยในการรับน้ำหนักแผ่น ดังนั้นเมื่อใช้วัสดุที่หนาขึ้นจึงไม่แตกต่างกับโครงคร่าวเหล็กมากนัก กรณีที่ใช้โครงอะลูมิเนียมตามท้องตลาดซึ่งมีเนื้อบางจะส่งผลเสียในแง่ของความเสียหายเนื่องจากการขนส่งการกองเก็บ และการติดตั้ง มากกว่าโครงเหล็ก และเกิดความเสียหายมากกว่าในระยะยาวถ้ามีการเปิดปิดฝ้าบ่อยๆ
คุณสมบัติในการทนไฟ : โครงคร่าวเหล็กชุบสังกะสีจะมีอัตราการทนไฟได้ในระดับหนึ่ง วัสดุที่เป็นเหล็กจะมีจุดหลอมเหลวโดยทั่วไป ไม่ต่ำกว่า 1400 องศาเซลเชียส ทำให้เมื่อเกิดเหตุเพลิงไหม้ โครงคร่าวเหล็กจะสามารถคงรูปอยู่ได้นานกว่าโดยไม่พังลงมา (โครงที่ผ่านการทดสอบการทนไฟ ตามมาตรฐาน BS476:Part23:1987 จะทนไฟไดไม่ต่ำกว่า 92 นาที) ส่วนโครงคร่าวอะลูมิเนียมไม่มีคุณสมบัติทนไฟเลย อะลูมิเนียมจะมีจุดหลอมเหลวต่ำ ประมาณ 600 องศาเซลเชียส ซึ่งเมื่อเกิดเพลิงไหม้จะหลอมเหลว และพังทลายได้ (ในห้องทดสอบการเกิดเพลิงไหม้ ใช้เวลาเพียง5นาที ในการเพิ่มอุณหภูมิห้อง จากที่ 25 องศา ไปที่ 600 องศา)
ระบบล็อค : ระบบการล็อคข้อต่อระหว่างโครงคร่าวหลักด้วยกันและโครงคร่าวซอยของโครงทีบาร์เหล็กชุบสังกะสี ตราช้างเป็นแบบ interlock ทำให้แข็งแรงกว่าและไม่จำเป็นต้องมีตัวต่อเพิ่ม ส่วนโครงทีบาร์อะลูมิเนียมจะต้องอาศัยตัวต่อโครงและรอยต่อระหว่างโครงคร่าวหลักและซอยเป็นแบบขอเกาะทำให้ไม่แข็งแรงและมักเกิดช่องว่างระหว่างโครงเมื่อรับน้ำหนักแผ่น
ขนาดที่รองรับระบบการติดตั้ง : โครงคร่าวเหล็กชุบสังกะสี มี 3 ระบบ ได้แก่ ระบบเมตริก ระบบฟุต และระบบยิปซัม ส่วนโครงคร่าวทีบาร์อะลูมิเนียม มีระบบยิปซัมเป็นหลัก ถ้าต้องการระบบอื่นต้องสั่งทำ
จำหน่ายแผ่น ฝ้าผนังเพดานพื้น ตราช้าง สมาร์บอร์ด ไฟเบอร์ซีเมนต์ ราคาถูก | Fiber Cement SmartBoard SCG
ตัวแทนจำหน่ายผลิตภัณฑ์ตราช้าง วัสดุก่อสร้างคุณภาพ จากเอสซีจี แผ่นฝ้าเพดาน ฝาผนัง พื้น สำเร็จรูป แผ่นไฟเบอร์ซีเมนต์ อเนกประสงค์ ตราช้าง สมาร์ทบอร์ด ทนแดด ทนฝน ปลวกไม่กิน เหนียวทนทาน | Fiber Cement Trachang SmartBoard SCG | หลากหลายการใช้งาน อาทิ แผ่นบอร์ดขอบเรียบ-ขอบลาด ลายไม้ เซาะร่อง ระบายอากาศ ฝ้าทีบาร์ โครงคร่าว T-bar ฝ้าแขวน อุปกรณ์ติดตั้งโครงคร่าว ฉาบเรียบ เป็นต้น
วันพุธที่ 11 พฤศจิกายน พ.ศ. 2558
วันอังคารที่ 10 พฤศจิกายน พ.ศ. 2558
คำถาม-คำตอบ : เรื่องฝ้าเพดาน ฝาผนัง สมาร์ทบอร์ดไฟเบอร์ซีเมนต์ โครงคร่าว ตราช้าง และอื่นๆ สำหรับบ้านพักและอาคาร
คำถาม-คำตอบเกี่ยวกับฝ้าเพดานฝาผนัง การติดตั้ง แผ่นไฟเบอร์ซีเมนต์ สมาร์ทบอร์ด ตราช้าง โครงคร่าวทีบาร์ โครงซีลายน์ ฝ้าแขวน ผนังเบา อื่นๆ
ถาม : รอยนูนบนโครงคร่าวทำให้โครงแข็งแรงขึ้นจริงหรือ?
ตอบ : รอยนูนบนโครงที่ออกแบบได้ถูกต้อง สามารถเพิ่มความต้านทานต่อแรงดัดในทิศทางตั้งฉากกับแนวรอยนูน ทั้งนี้รอยนูนนั้นจะต้องมีความต่อเนื่องตามแนวยาวของโครง หรืออยู่ในทิศทางที่เหมาะสมด้วยจึงจะก่อให้เกิดประโยชน์
ถาม : รอยนูนบนโครงคร่าวทำให้โครงแข็งแรงขึ้นจริงหรือ?
ตอบ : รอยนูนบนโครงที่ออกแบบได้ถูกต้อง สามารถเพิ่มความต้านทานต่อแรงดัดในทิศทางตั้งฉากกับแนวรอยนูน ทั้งนี้รอยนูนนั้นจะต้องมีความต่อเนื่องตามแนวยาวของโครง หรืออยู่ในทิศทางที่เหมาะสมด้วยจึงจะก่อให้เกิดประโยชน์
--------------------------------------------------------------------------------------
วันเสาร์ที่ 7 พฤศจิกายน พ.ศ. 2558
ระบบโครงคร่าวฝ้าเพดานทีบาร์ ยูเอสจี โครงฝ้าแขวน รุ่นใหม่ USG
ระบบโครงคร่าวฝ้าเพดานทีบาร์ ยูเอสจี
โครงคร่าวทีบาร์ ยูเอสจี มาพร้อมกับเทคโนโลยีขั้นสูง จากผู้ผลิตและคิดค้นแผ่นยิปซัมรายแรกของโลก จากประเทศสหรัฐอเมริการ ทำให้งานฝ้าเพดานทีบาร์ถูกพัฒนาไปอีกระดับ ด้วยดีไซน์โครงทันสมัย สวยงาม มาพร้อมด้วยเทคโนโลยี ควิกรีลีสคิป (Quick Release Clip) คลิปต่อโครงรุ่นใหม่ลิขสิทธิ์เฉพาะจาก ยูเอสจี ทำให้การติดตั้งรวดเร็วและง่ายดายยิ่งขึ้น ระบบโครงคร่าวแข็งแรง ทนทาน เหมาะสำหรับงานฝ้าเพดานทีบาร์ และฝ้าเพดานอะคูสติก ยูเอสจี
วันศุกร์ที่ 6 พฤศจิกายน พ.ศ. 2558
การติดตั้งโครงคร่าวฝ้าเพดานที-บาร์ CMC
ขั้นตอนการติดตั้งโครงคร่าวฝ้าเพดานที-บาร์ CMC
| คลิกภาพเพื่อขยาย | 
ก่อนการติดตั้งกรุณาศึกษาข้อมูลตารางเพื่อตรวจสอบว่าได้เลือกโครงรุ่นที่ถูกต้องเหมาะสมกับชนิดเผ่นฝ้าเพดานที่จะใช้แล้ว
1.ติดตั้งโครงคร่าวริมเข้ากับผนังโดยรอย ให้ได้ระดับฝ้าตามที่ระบุไว้ในแบบด้วยตะปูหรือตะปูเกลียว
2.หาตำแหน่งแนวโครงคร่าวหลัก ซึ่งแต่ละแนวจะห่างจะห่างกันประมาณ 1200 มม. แล้วติดชุดปรับระดับ (ฺButterfly Clip และลวด 4 มม.) ตามแนวโครงคร่าวหลัก ให้แต่ละจุดห่างกันประมาณ 1200 มม.
โครงคร่าวฝ้าเพดานที-บาร์ ซีเอ็มซี ฝ้าแขวน T-Bar CMC
โครงคร่าวแขวนฝ้าเพดานที-บาร์ ซีเอ็มซี T-bar CMC
 
คุณสมบัติพิเศษของโครงคร่าวแขวนฝ้าเพดาน ที-บาร์ CMC
1.ระบบเคลือบสี 2 ชั้น
โครงคร่าวฝ้าเพดานที-บาร์ CMC มีกรรมวิธีการผลิตที่ทันสมัยที่สุดในปัจจุบัน ผ่านการชุบสังกะสีด้วยระบบ Hot Dip Galvanized หรือ Electro Galvanized พร้อมเคลือบอีกชั้นด้วย Polyester Coating (Omniguard) ทำให้ทนทานและสวยงามตลอดอายุการใช้งาน
คุณสมบัติพิเศษของโครงคร่าวแขวนฝ้าเพดาน ที-บาร์ CMC
1.ระบบเคลือบสี 2 ชั้น
โครงคร่าวฝ้าเพดานที-บาร์ CMC มีกรรมวิธีการผลิตที่ทันสมัยที่สุดในปัจจุบัน ผ่านการชุบสังกะสีด้วยระบบ Hot Dip Galvanized หรือ Electro Galvanized พร้อมเคลือบอีกชั้นด้วย Polyester Coating (Omniguard) ทำให้ทนทานและสวยงามตลอดอายุการใช้งาน
ระบบโครงคร่าวฝ้าเพดานฉาบเรียบ โปรลายน์-แมกซ์ รับน้ำหนักมากขึ้นกว่าระบบฝ้าเพดานมาตรฐาน Proline Max
ระบบโครงคร่าวฝ้าเพดานฉาบเรียบ โปรลายน์-แมกซ์ Proline MAX
เป็นระบบฝ้าเพดานที่พัฒนาขึ้น เพื่อให้มีความสามารถในการรับน้ำหนักมากขึ้นกว่าระบบฝ้าเพดานมาตรฐาน มีความสามารถในการรองรับน้ำหนักของระบบโครงคร่าวหลัก ที่ 100 กิโลกรัม* โดยไม่ทำให้ฝ้าเพดานเสียระดับ หรือก่อให้เกิดความเสียหายต่อระบบฝ้าเพดานโดยรวม
วันพฤหัสบดีที่ 5 พฤศจิกายน พ.ศ. 2558
โครงคร่าวฝ้าเพดานทีบาร์ ตราช้าง รุ่นใหม่ เทคโนโลยีควิกรีลิสคริป ฝ้าแขวน T-Bar SCG
ระบบโครงคร่าวฝ้าเพดานทีบาร์ ตราช้าง
ด้วยความร่วมมือจากผู้ผลิตและคิดค้นแผ่นยิปซัมรายแรกของโลกจากประเทศสหรัฐอเมริกาโครงคร่าวทีบาร์ ตราช้าง ได้ถูกพัฒนาไปอีกขั้นด้วยนวัตกรรมที่ได้รับแรงบันดาลใจจากคุณ
ระบบโครงคร่าวฝ้าเพดานทีบาร์ ตราช้าง รุ่นใหม่ ผลิตจากเหล็กชุบสังกะสีคุณภาพสูงด้วยเทคโนโลยีการผลิตแบบพิเศษ พร้อมด้วยคริปชนิดใหม่ (Quick Release Clip) ช่วยให้การติดตั้งง่ายดายและรวดเร็วมากยิ่งขึ้น ระบบโครงคร่าวได้คุณภาพ สวยงาม แข็งแรงทนทาน รับน้ำหนักได้ดี เหมาะสำหรับติดตั้งร่วมกับแผ่นทีบาร์ ตราช้าง และแผ่นฝ้าอะคูสติกยูเอสจี
วันพุธที่ 4 พฤศจิกายน พ.ศ. 2558
วิธีการติดตั้งโครงคร่าวโลหะฝ้าเพดานฉาบเรียบ พลัส-ลายน์ ตราช้าง
ขั้นตอนการติดตั้งโครงคร่าวโลหะฝ้าเพดาน พลัสลายน์ ตราช้าง
1.กำหนดระดับฝ้ารอบห้อง แล้วติดโครงริม พลัส ตามระดับ
1.กำหนดระดับฝ้ารอบห้อง แล้วติดโครงริม พลัส ตามระดับ
โครงคร่าวโลหะฝ้าเพดานฉาบเรียบ พลัส-ลายน์ ตราช้าง PlusLine SCG
โครงคร่าวโลหะสำหรับฝ้าเพดานฉาบเรียบ พลัส-ลายน์ ตราข้าง SCG ช่วยลดความกังวลเรื่อง..
-ระดับฝ้าไม่เรียบ
-ฝ้าไม่แข็งแรง เสี่ยงต่ออุบัติเหตุ
-ต้องการโครงรุ่นประหยัด แต่ได้มาตรฐานทั้งด้านความปลอดภัยและความสวยงามของฝ้าหลังติดตั้ง
การใช้งาน โครงคร่าวโลหะฝ้าเพดานฉาบเรียบ พลัส-ลายน์ ตราช้าง
-เป็นโครงคร่าวที่ได้มาตรฐานของฝ้าเพดานยิปซัมฉาบเรียบ ภายในอาคาร
วันอังคารที่ 3 พฤศจิกายน พ.ศ. 2558
ขั้นตอนการติดตั้งโครงตัวซี(C)โครงตัวยู(U) ระบบโครงคร่าวฝาผนัง โปรวอลล์ ตราช้าง SCG
ส่วนประกอบของระบบโครงคร่าวโลหะฝาผนัง โปร-วอลล์ สำหรับการติดตั้งแผ่นยิปซัมบอร์ด หรือแผ่นไฟเบอร์ซีเมนต์ สมาร์ทบอร์ด เป็นฝาผนัง โดยประกอบด้วย โครงคร่าวโลหะตัวซี ตราช้าง (C-Stud) โครงคร่าวโลหะตัวยู ตราช้าง (U-Track)
โครงตัวซี(C)ยู(U) โครงคร่าวโลหะฝาผนัง โปร-วอลล์ ตราช้าง SCG Prowall Partition
โครงคร่าวโลหะฝาผนัง โปร-วอลล์ ตราช้าง โครงตัวซี(C)และโครงตัวยู(U) เป็นโครงคร่าวโลหะเพื่อการใช้งานเป็นโครงคร่าวของระบบฝาผนังยิปซัมและแผ่นไฟเบอร์ซีเมนต์ สมาร์ทบอร์ด ภายในบ้านและอาคาร โดยได้รับการรับรองตามมาตรฐาน มอก.863-2532 ผลิตจากเหล็กชุบสังกะสีแบบจุ่มร้อน (Hot Dip Galvanized Steel) ตามมาตรฐาน มอก. 50-2538 เพื่อให้ทนทานต่อการเกิดสนิม พับขึ้นรูปเป็นรูปตัว C และ U สม่ำเสมอตลอดทั้งเส้น
ประเภทและขนาดหน้าตัด มี 2 ความหนา คือ
1.โครงคร่าวโลหะฝาผนัง โปร-วอลล์ หนา 0.52 มม.(เบอร์ 24).
2.โครงคร่าวโลหะฝาผนัง พลัส-วอลล์ หนา 0.40 มม. (เบอร์ 26)
โดยทั้งสองความหนาเหล็ก มีขนาดของหน้าตัด ตัว C และ U เท่ากัน
ประเภทและขนาดหน้าตัด มี 2 ความหนา คือ
1.โครงคร่าวโลหะฝาผนัง โปร-วอลล์ หนา 0.52 มม.(เบอร์ 24).
2.โครงคร่าวโลหะฝาผนัง พลัส-วอลล์ หนา 0.40 มม. (เบอร์ 26)
โดยทั้งสองความหนาเหล็ก มีขนาดของหน้าตัด ตัว C และ U เท่ากัน
ขั้นตอนการติดตั้งโครงซีลายน์ โครงคร่าวโลหะฝ้าเพดานฉาบเรียบ โปร-ลายน์ ตราช้าง SCG C-line
ขั้นตอนการติดตั้งโครงคร่าวซีลายน์ (C-line) โครงคร่าวโลหะฝ้าเพดานฉาบเรียบ โปร-ลายน์ ตราช้าง Proline SCG
1.กำหนดระดับฝ้ารอบห้อง แล้วตดิโครงริมโปร ตามระดับ
วันจันทร์ที่ 2 พฤศจิกายน พ.ศ. 2558
โครงคร่าวโลหะฝ้าเพดานฉาบเรียบ โปร-ลายน์ ตราช้าง โครงซีลายน์ SCG ProLine
โครงคร่าวโลหะฝ้าเพดานฉาบเรียบ โปรลายน์ ตราช้าง SCG นวัตกรรมโครงคร่าวฝ้าเพดานยุดใหม่ โครงซีลายน์จากตราช้าง SCG เพื่อขจัดปัญหา
1.ระดับฝ้าไม่เรียบ
2.ฝ้าไม่แข็งแรง เสี่ยงต่อการเกิดอุบัติเหตุ
3.ความไม่สวยงาม หรือไม่แข็งแรง เมื่อต้องการฝ้าในรูปแบบใหม่ๆ เช่น ฝ้าต่างระดับ
4.เมื่อติดตั้งอุปกรณ์อื่นๆ บนฝ้าแล้ว หลวม ร่วงหล่น ยึดไม่อยู่หรือฝ้าแอ่น
5.ไม่มั่นใจในฝีมือการติดตั้งว่าจะแข็งแรง ทนทาน ปลอดภัย และสวยงามหรือไม่
6.เหมาะสมสำหรับการใช้งานร่วมกับแผ่นยิปซัมทั้งแบบขอบลาด 2 ด้าน และแบบขอบลาด 4 ด้าน ตราชิกน่า(Signa)
1.ระดับฝ้าไม่เรียบ
2.ฝ้าไม่แข็งแรง เสี่ยงต่อการเกิดอุบัติเหตุ
3.ความไม่สวยงาม หรือไม่แข็งแรง เมื่อต้องการฝ้าในรูปแบบใหม่ๆ เช่น ฝ้าต่างระดับ
4.เมื่อติดตั้งอุปกรณ์อื่นๆ บนฝ้าแล้ว หลวม ร่วงหล่น ยึดไม่อยู่หรือฝ้าแอ่น
5.ไม่มั่นใจในฝีมือการติดตั้งว่าจะแข็งแรง ทนทาน ปลอดภัย และสวยงามหรือไม่
6.เหมาะสมสำหรับการใช้งานร่วมกับแผ่นยิปซัมทั้งแบบขอบลาด 2 ด้าน และแบบขอบลาด 4 ด้าน ตราชิกน่า(Signa)
การติดตั้งโครงคร่าวฝ้าเพดานที-บาร์ ตราช้าง ระบบประหยัด
ขั้นตอนการติดตั้งระบบประหยัด(ระบบยิปซัม) โครงคร่าวฝ้าเพดาน ที-บาร์ ตราช้าง
1.กำหนดระดับรอบห้อง และติดโครงคร่าวริมเข้ากับผนัง
โครงคร่าวแขวนฝ้าเพดาน ที-บาร์ ตราช้าง SCG
ระบบโครงคร่าวฝ้าเพดาน ที-บาร์ ตราช้าง
ระบบโครงคร่าวที่ผ่านการออกแบบ และเคลือบสีขาวที่ผิวหน้าโครงก่อนการผลิต เพื่อใช้ติดตั้งเป็นฝ้าเพดานทีบาร์ร่วมกับแผ่นฝ้าเพดานทีบาร์ ตราช้าง ระบบโครงประกอบด้วย
-โครงคร่าวหลัก มีหัวต่อแบบล็อคในตัว (Self-inter locking)
                          สันโครงสูง 38 มม. (1.5นิ้ว) เหมาะสำหรับงานฝ้าทีบาร์ยิปซัม ฝ้าทีบาร์อะคูสติก และแผ่นไฟเบอร์ซีเมนต์ สมาร์ทบอร์ด
                          สันโครงสูง 32 มม. (1.2นิ้ว) เหมาะสำหรับงานฝ้าทีบาร์อะคูสติก
-โครงคร่าวซอย สันโครงสูง 28 มม.
-โครงคร่าวริม    ขนาด 24x24 มม. (1x1นิ้ว) และขนาด 20x10x10x14มม. (W Shape : WRA 14/20)
ซึ่งออกแบบเพื่อการรับน้ำหนักแผ่นฝ้ายิปซัม และมีสีขาวที่เข้ากับฝ้าเพดาน รับประกันความถูกต้องของขนาดโครงคร่าว และการเคลือบต้านทานการกัดกร่อนจากสภาพแวดล้อม จึงทำให้ได้รับความไว้วางใจและใช้งานในโครงการขนาดใหญ่มากมาย
วันพฤหัสบดีที่ 8 ตุลาคม พ.ศ. 2558
วิธีการซ่อมฝ้าเพดานแผ่นเรียบ
วิธีการซ่อมแซมฝ้าเพดานแผ่นเรียบ
     เมื่อผู้รับเหมารับงานซ่อมแซมฝ้าเพดานที่เกิดความเสียหาย ผู้รับเหมาควรทราบถึงวิธีการซ่อมแซมฝ้าเพดานอย่างเป็นขั้นเป็นตอนเพื่อให้การทำงานเป็นไปอย่างราบรื่น ขั้นตอนการซ่อมแซมฝ้าเพดานที่ชำรุดเสียหายจากปัญหาคราบหยดน้ำหรือปัญหาเชื้อรามีดังต่อไปนี้
1.ทำการยกเบรกเกอร์เพื่อตัดกระแสไฟฟ้าในชั้นหรือบริเวณดังกล่าว เพื่อป้องกันอันตรายจากกระแสไฟฟ้าในสายไฟที่เดินอยู่เหนือฝ้าเพดาน
1.ทำการยกเบรกเกอร์เพื่อตัดกระแสไฟฟ้าในชั้นหรือบริเวณดังกล่าว เพื่อป้องกันอันตรายจากกระแสไฟฟ้าในสายไฟที่เดินอยู่เหนือฝ้าเพดาน
วันเสาร์ที่ 11 กรกฎาคม พ.ศ. 2558
Tips&Tricks : เทคนิคการเจาะดาวน์ไลท์ให้สวย,เทคนิดการติดตั้งฝ้าแบบเว้นร่อง,เทคนิคการทาสีฝ้า ให้สวยและสีติดทนนาน สมาร์ทบอร์ด ตราช้าง แผ่นไฟเบอร์ซีเมนต์ Fiber Cement Board
เทคนิคเล็กๆน้อย สำหรับงานฝ้าเพดาน ที่ใช้แผ่นไฟเบอร์ซีเมนต์ ตราช้าง สมาร์ทบอร์ด 
1.เพื่อความเรียบเนียนสวยงาม สำหรับงานฝ้าที่ติดตั้งแบบเว้นร่อง สามารถใช้เทคการติดตั้งฝ้าแบบเว้นร่อง ได้ตามภาพด้านล่าง
1.เพื่อความเรียบเนียนสวยงาม สำหรับงานฝ้าที่ติดตั้งแบบเว้นร่อง สามารถใช้เทคการติดตั้งฝ้าแบบเว้นร่อง ได้ตามภาพด้านล่าง
วันศุกร์ที่ 10 กรกฎาคม พ.ศ. 2558
รวมไอเดีย การติดตั้งแบบฝ้าเพดานสวยและการออกแบบฝ้าผสมผสาน ทั้งฝ้าภายใน ภายนอก ด้วยแผ่นไฟเบอร์ซีเมนต์ ตราช้าง สมาร์ทบอร์ด - Idea smartboard fibercement
แบบฝ้าสวย จากตราช้าง สมาร์ทบอร์ด
หากพูดถึงฝ้า-เพดาน หลายคนอาจถึงแต่แบบฝ้าฉาบเรียบรูปแบบเดิมๆ แต่ที่จริงแล้ว ท่านสามารถออกแบบฝ้า-เพดานให้มีลูกเล่น ลวดลาย และเพิ่มความน่าสนใจ ก่อให้เกิดรูปแบบฝ้า-เพดานที่สวยแตกต่างได้มากมาย ให้กับฝ้า-เพดานของห้องแต่ละห้างภายในบ้านและนอกบ้านได้ ทั้งยังมีคุณสมบัติของการเป็นฉนวนป้องกันความร้อนที่ดีไม่ต่างจากเดิม
ฝ้า ตราช้าง สมาร์ทบอร์ด จึงสร้างเทรนด์ใหม่ให้กับการติดตั้งฝ้าเพดานทั้งภายในและภายนอก ด้วยการนำฝ้าหลากหลายรุ่นมาติดตั้งแบบผสมผสาน ด้วยคุณสมบัติของแผ่นไฟเบอร์ซีเมนต์ ในการทนความชื้น ปลวกไม่กิน เพราะฝ้า ตราช้าง สมาร์ทบอร์ด ผลิตจากปูนซีเมนต์ปอร์ตแลนด์ ตราช้าง ผสมเส้นใยเซลลูโลส และซิลิก้า ผ่านกระบวนการผลิตที่เรียกว่า เทคโนโลยี FIRM & FLEX จึงใช้งานได้อย่างมั่นใจ
แบบฝ้าภายใน 1 : ฝ้าผสมผสานหลายรุ่น สร้างสไตล์ส่วนตัว
| คลิกที่ภาพเพื่อขยาย | 
| คลิกที่ภาพเพื่อขยาย | 
วันพุธที่ 8 กรกฎาคม พ.ศ. 2558
คุณสมบัติพิเศษของแผ่นไฟเบอร์ซีเมนต์ สมาร์ทบอร์ด ตราช้าง - Elephant smartboard fibercement
แผ่นไฟเบอร์ซีเมนต์บอร์ด ตราช้าง สมาร์ทบอร์ด ไม้ใช้แอสเบสตอส แต่ทำจากปูนซีเมนต์ปอร์ตแลนด์ ตราช้าง ซิลิก้า และเส้นใยเซลลูโลสชนิดพิเศษ เนื้อเหนียว แข็งแรง ทนทาน เพราะผ่านกระบวนการอบไอน้ำที่อุณหภูมิและแรงดันสูง (Autoclave) ใช้งานได้หลากหลาย ทำฝ้าเพดานและผนัง ทั้งภายใน และภายนอก รวมทั้งใช้เป็นแผ่นรองวัสดุปิดผิวต่างๆ ได้อย่างมั่นใจ
แผ่นไฟเบอร์ซีเมนต์ ตราช้าง ทนทาน ปลวกไม่กิน : ปลวกไม้กินสมาร์ทบอร์ด เพราะผลิตจากปูนตราช้าง ซึ่งผสมเนื้อเดียวกับเส้นใยเซลลูโลสชนิดพิเศษที่ไม่เป็นอาหารปลวก
แผ่นไฟเบอร์ซีเมนต์ ตราช้าง เนื้อเหนียว ดัดโค้งง่าย : เพราะเนื้อสมาร์ทบอร์ด มีความเหนียว ยืดหยุ่นตัวสูง ดัดโค้งได้ โดยไม่ต้องลูบน้ำ รัสมีการดัดโค้ง แตกต่างตามความหนา ของแผ่นไฟเบอร์ซีเมนต์ สมาร์ทบอร์ด ตราช้าง คือ
คุณสมบัติพิเศษของสมาร์ทบอร์ด (แผ่นไฟเบอร์ซีเมนต์) ตราช้าง
แผ่นไฟเบอร์ซีเมนต์ ตราช้าง ทนน้ำ ไม่เปื่อยยุ่ย : ทนน้ำ ทนฝน ทนแดด นานนับสิบปี โดยไม่เปื่อยยุ่ย (ตามมาตรฐาน JIS A5420) เพราะทำจากปูนซีเมนต์ปอร์ตแลนด์ ตราช้าง , ซิลิก้า และเส้นใยเซลลูโลสชนิดพิเศษ ไม่ใช้แอสเบสตอส หรือ "แร่ใยหิน" ที่เป็นอันตรายแผ่นไฟเบอร์ซีเมนต์ ตราช้าง ทนทาน ปลวกไม่กิน : ปลวกไม้กินสมาร์ทบอร์ด เพราะผลิตจากปูนตราช้าง ซึ่งผสมเนื้อเดียวกับเส้นใยเซลลูโลสชนิดพิเศษที่ไม่เป็นอาหารปลวก
แผ่นไฟเบอร์ซีเมนต์ ตราช้าง เนื้อเหนียว ดัดโค้งง่าย : เพราะเนื้อสมาร์ทบอร์ด มีความเหนียว ยืดหยุ่นตัวสูง ดัดโค้งได้ โดยไม่ต้องลูบน้ำ รัสมีการดัดโค้ง แตกต่างตามความหนา ของแผ่นไฟเบอร์ซีเมนต์ สมาร์ทบอร์ด ตราช้าง คือ
วันอังคารที่ 26 พฤษภาคม พ.ศ. 2558
เกี่ยวกับวัสดุไฟเบอร์ซีเมนต์ Fiber Cement Board แผ่นไฟเบอร์ซีเมนต์บอร์ด
รวบรวมเรื่องราวและบทความ คุณสมบัติของไฟเบอร์ซีเมนต์บอร์ด และไอเดีย เทคนิคการออกแบบฝ้าเพดาน ผนัง พื้น ฝ้าแขวน ทีบาร์ เพื่อใช้งานกับห้องต่างๆภายในบ้าน 
1.ไฟเบอร์ซีเมนต์ คืออะไร ความหมายของแผ่นไฟเบอร์ซีเมนต์บอร์ด

1.ไฟเบอร์ซีเมนต์ คืออะไร ความหมายของแผ่นไฟเบอร์ซีเมนต์บอร์ด
2.เทคโนโลยี และคุณสมบัติพิเศษ ของ แผ่นไฟเบอร์ซีเมนต์ สมาร์ทบอร์ด

วันศุกร์ที่ 8 พฤษภาคม พ.ศ. 2558
แบบผนัง ฝ้า เพดาน พื้น ชายคา สวยๆ ด้วยวัสดุไฟเบอร์ซีเมนต์บอร์ด จาก สมาร์ทบอร์ด ตราช้าง
ตัวอย่างการใช้งาน แผ่นไฟเบอร์ซีเมนต์ (Fiber Cement) ตราช้าง สมาร์ทบอร์ด แบบผนัง แบบฝ้า เพดาน พื้น แบบชายคา
แบบฝ้าเพดาน ฝ้าระบายอากาศ ตราช้าง สมาร์ทบอร์ด
แก้ปัญหาบ้านร้อนที่สาเหตุหลัก : ด้วยการใช้ฝ้า ตราช้าง สมาร์ทบอร์ด ชนิดที่มีรูระบายอากาศ ช่วยประหยัดค่าใช้จ่าย ค่าไฟฟ้า และคุ้มค่าในระยะยาว
ฝ้าชายคา : ใช้ ฝ้า ตราช้าง สมาร์ทบอร์ด ทำสำเร็จรูปจากโรงงาน ช่วยให้บ้านเย็นสบายกว่าการใช้ฝ้าชายคาทึบ เพราะอากาศเย็นพัดเข้ามาแทนที่อากาศร้อน และระบายออกได้ง่าย
วันศุกร์ที่ 24 เมษายน พ.ศ. 2558
วิธีการคำนวณหาปริมาณโครงคร่าวทีบาร์ (โครงทีเมน ทีซอย ฉากริม) และจำนวนแผ่นฝ้าเพดาน ทีบาร์ที่ต้องใช้ต่อพื้นที่ที่ต้องการติดตั้ง
การติดตั้งฝ้าเพดานขนาด 60 x 60 แบบโครง ที-บาร์  และการคำนวนหาปริมาณโครงคร่าวและแผ่นฝ้าทีบาร์
ต้องคำนวณจำนวนอุปกรณ์ที่ต้องใช้ในการติดตั้งเบื้องต้น
เพื่อให้ทราบปริมาณการใช้และงบประมาณแบบคร่าวๆ
วิธีการหาจำนวนโครงคร่าวทีบาร์แบบยาว
(โครงทีเมน)
โดยการนำขนาดด้านสั้นที่สุดหารด้วย
0.60 แล้วปัดเศษขึ้น จะได้จำนวนล็อกที่ต้องวางฝ้าเพดานขนาด 60x60  ซม. ของด้านสั้น จากนั้นให้ ลบออก  1 หน่วย
จะได้จำนวนแนวที่ต้องวางโครงทีเมน (เส้นสีน้ำเงินในรูป)  เมื่อได้จำนวนแนวที่ต้องวางโครงทีเมนให้คูณด้วยด้านที่ยาวที่สุด
แล้วหารด้วย 6 (6 คือ ความยาวของทีเมน ยึดความยาวของทีเมนที่จะใช้ในการคำนวณ)พร้อมกับปัดเศษขึ้น จะได้จำนวนโครงทีเมน
โดยประมาณ
วิธีการหาจำนวนโครงคร่าวทีบาร์แบบสั้น
(โครงทีซอย)
โดยการนำขนาดด้านที่ยาวที่สุดหารด้วย
0.60 แล้วปัดเศษขึ้น จำได้จำนวนล็อกที่ต้องวางฝ้าเพดานขนาด 60x60  ซม. ของด้านยาว จากนั้นให้ ลบออก
 1  หน่วย จะได้จำนวนแนวทีต้องวางโครงทีซอย
(เส้นสีแดงในรูป)  เก็บจำนวนนี้ไว้  และให้นำด้านที่สั้นที่สุดตั้ง หารด้วย 0.6 แล้วปัดเศษขึ้น จะได้
ฝ้าแขวน ที-บาร์ ตราช้าง สมาร์ทบอร์ด รุ่นซูเปอร์สมาร์ท ขนาด 60x60x0.4ซม. ฝ้าเพดาน ใหม่! จาก SCG(เอสซีจี)
จำหน่ายฝ้าเพดาน ฝ้าแขวน ที-บาร์ รุ่น ซูปเปอร์สมาร์ท ตราช้าง สมาร์ทบอร์ด แผ่นฝ้าภายใน ชนิดการติตตั้งแบบที-บาร์(T-bar) ขนาด 60x60 ซม. หนา 4 มม. ทนน้ำทนชื้น แข็งแรงทนทานด้วยวัสดุไฟเบอร์ซีเมนต์ และที่สำคัญปลวกไม่กิน พร้อมลวดลายและสีสันสวยสดงดงาม ให้คุณได้เลือกสรร ทั้งแบบแผ่นเรียบหรือผสมผสานคละแบบให้เป็นสไตล์คุณ  สามารถทำความสะอาดได้ง่าย ด้วยการเช็คคราบสกปรกและของเหลวได้ง่าย  มีค่านำความร้อนต่ำ ทำให้บ้าน/ห้องเย็นขึ้น   บรรจุ 15 แผ่น/กล่อง 
ข้อมูลทั่วไป ของแผ่นฝ้าเพดาน แบบฝ้าแขวน ชนิด ที-บาร์ ตราช้าง สมาร์ทบอร์ด รุ่น ซูเปอร์สมาร์ท
ขนาด 60x60x0.4 ซม.
น้ำหนัก 2.2 กก.
พื้นที่ใช้งานต่อแผ่น : 0.36 ตร.ม.
ลักษณะการใช้งาน เป็นฝ้าภายใน
ลวดลายฝ้า ทีบาร์ ตราช้าง สมาร์ทบอร์ด 60x60x0.4 ซม.
ลายดอกลิลลี่
ลายทิมเบอร์ สีชมพูกุหลาบ
ลายทิมเบอร์ สีฟ้าอันดามัน
ลายดอกกันเกรา สีชมพูกุหลาบ
ลายดอกกันเกรา สีฟ้าอันดามัน
ลายดอกกันเกรา สีขาวมะลิ
สีขาวไข่มุก
สีชมพูทับทิม
สีฟ้าไพลิน
ลายดอกซากุระ
ลายดอกกุหลาบสวรรค์
วิธีคำนวณหาจำนวนโครงคร่าวและแผ่นฝ้าเพดานทีบาร์ คลิก
ขนาด 60x60x0.4 ซม.
น้ำหนัก 2.2 กก.
พื้นที่ใช้งานต่อแผ่น : 0.36 ตร.ม.
ลักษณะการใช้งาน เป็นฝ้าภายใน
ลวดลายฝ้า ทีบาร์ ตราช้าง สมาร์ทบอร์ด 60x60x0.4 ซม.
ลายดอกลิลลี่
ลายทิมเบอร์ สีชมพูกุหลาบ
ลายทิมเบอร์ สีฟ้าอันดามัน
ลายดอกกันเกรา สีชมพูกุหลาบ
ลายดอกกันเกรา สีฟ้าอันดามัน
ลายดอกกันเกรา สีขาวมะลิ
สีขาวไข่มุก
สีชมพูทับทิม
สีฟ้าไพลิน
ลายดอกซากุระ
ลายดอกกุหลาบสวรรค์
วิธีคำนวณหาจำนวนโครงคร่าวและแผ่นฝ้าเพดานทีบาร์ คลิก
อัพเดท! ฝ้า ที-บาร์ ฝ้าเพดาน ลายใหม่ จากSCG (พร้อมรูปภาพ)
ฝ้าสมาร์ทบอร์ด เอสซีจี รุ่นซูเปอร์สมาร์ท สวยงามอ่อนหวานด้วยเทคโนโลยีพิเศษที่ทำให้ฝ้าภายในบ้านดูอ่อนช้อยด้วยลายดอกไม้พร้อมสีสำเร็จ ใช้ติดตั้งได้ทันที อีกทั้งแข็งแรงทนทานคุ้มราคาด้วยเนื้อวัสดุไฟเบอร์ซีเมนต์ทำให้ปลวกไม่กิน ทนน้ำทนชื้น เช็ดทำความสะอาดได้และไม่มีเศษฝุ่นร่วงหล่น
ฝ้าสมาร์ทบอร์ด เอสซีจี รุ่นซูเปอร์สมาร์ท ขนาด60x60x0.4ซม. ความหนา 4 มม. ปลอดภัย ไม่มีใยหิน เหนียว ทน ด้วยโครงสร้างพิเศษจากเทคโนโลยี FIRM & FLEX ซึ่งผสานโครงสร้างของปูนซีเมนต์ปอร์ตแลนด์ เอสซีจี ซิลิก้า และเส้นใยเซลลูโลสชนิดพิเศษ ผ่านกระบวนการอบไอน้ำที่อุณหภูมิและแรงดันสูง (Autoclave) จึงมั่นใจในคุณภาพที่ได้มาตรฐานเอสซีจีทุกแผ่น ใช้เป็นฝ้าเพดานภายในได้ดี
สวยด้วยลวดลายที่หลากหลาย สีสันสวยงาม ดีไซน์ทันสมัย ทนทานใช้งานได้ยาวนานเพราะแข็งแรง ไม่หักง่าย ทนน้ำทนชื้น ปลวกไม่กิน ด้วยเนื้อวัสดุไฟเบอร์ซีเมนต์ ทำความสะอาดง่ายด้วยวัสดุที่ทนน้ำ บ้านเย็นขึ้นเพราะค่านำความร้อนต่ำถึง 0.084 วัตน์/ม.?C ตามมาตรฐานการทดสอบ ASTM C117
วัสดุ : ไฟเบอร์ซีเมนต์ 
ขนาดสินค้า
ความกว้าง : 60 ซม.
ความยาว : 60 ซม.
ความสูง/หนา : 0.4 ซม.
น้ำหนัก : 2.2 กก.
ข้อมูลอื่นๆ
จำนวนการใช้งาน : 0.36 แผ่น/ตร.ม. 
![]()  | 
| ฝ้าสมาร์ทบอร์ด เอสซีจี รุ่นซูเปอร์สมาร์ท ขนาด 60x60x0.4 ซม.ลายดอกกุหลาบสวรรค์ | 
![]()  | 
| ฝ้าสมาร์ทบอร์ด เอสซีจี รุ่นซูเปอร์สมาร์ท ขนาด 60x60x0.4 ซม.ลายดอกผกา สีฟ้า | 
![]()  | 
| ฝ้าสมาร์ทบอร์ด เอสซีจี รุ่นซูเปอร์สมาร์ท ขนาด 60x60x0.4 ซม.ลายดอกซากุระ | 
![]()  | 
| ฝ้าสมาร์ทบอร์ด เอสซีจี รุ่นซูเปอร์สมาร์ท ขนาด 60x60x0.4 ซม.ลายดอกผกา สีชมพู | 
![]()  | 
| ฝ้าสมาร์ทบอร์ด เอสซีจี รุ่นซูเปอร์สมาร์ท ขนาด 60x60x0.4 ซม.ลายดอกราชพฤกษ์ | 
วันศุกร์ที่ 17 เมษายน พ.ศ. 2558
การปิดผิวสมาร์ทบอร์ดด้วยเซรามิค
โครงคร่าวและอุปกรณ์
อุปกรณ์ฉาบรอยต่อ : ปูนกาวติดเซรามิคชนิดยืดหยุ่น
ผนัง ตราช้าง สมาร์บอร์ด : ขอบเรียบ หนา 10 - 12 มม.
ขั้นตอนการติดตั้ง
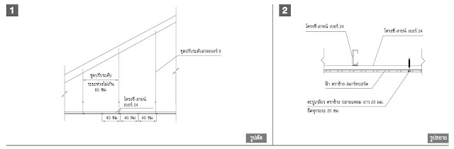
1.สำหรับผนังสมาร์ทบอร์ดที่จะปิดผิวด้วยเซรามิคให้ใช้ระยะห่างโครงคร่าว 40 ซม. เพื่อป้องกันผนังสั่นมากระหว่างการติดตั้งเซรามิค
อุปกรณ์ฉาบรอยต่อ : ปูนกาวติดเซรามิคชนิดยืดหยุ่น
ผนัง ตราช้าง สมาร์บอร์ด : ขอบเรียบ หนา 10 - 12 มม.
ขั้นตอนการติดตั้ง
1.สำหรับผนังสมาร์ทบอร์ดที่จะปิดผิวด้วยเซรามิคให้ใช้ระยะห่างโครงคร่าว 40 ซม. เพื่อป้องกันผนังสั่นมากระหว่างการติดตั้งเซรามิค
วันพฤหัสบดีที่ 16 เมษายน พ.ศ. 2558
การซ่อมแซม ฝ้าผนัง แผ่นไฟเบอร์ซีเมนต์บอร์ด ตราช้าง สมาร์ทบอร์ด
การซ่อมแซมแผ่นสมาร์ทบอร์ด ตราช้าง
โครงคร่าวและอุปกรณ์
โครงคร่าว : โครงซีลายน์
อุปกรณ์ยึด : ตะปูเกลียว ตราช้าง ปลายแหลม ยาว 23 มม.
อุปกรณ์ฉาบรอยต่อ : ปูนพลาสเตอร์ฉาบรอยต่อ ตราช้าง สมาร์ทบอร์ด , กระดาษทราย
ขั้นตอนการติดตั้ง
*กรณีแตกหักเสียหายน้อย (รอยแตกเล็กกว่า 2 ซม.)
โครงคร่าวและอุปกรณ์
โครงคร่าว : โครงซีลายน์
อุปกรณ์ยึด : ตะปูเกลียว ตราช้าง ปลายแหลม ยาว 23 มม.
อุปกรณ์ฉาบรอยต่อ : ปูนพลาสเตอร์ฉาบรอยต่อ ตราช้าง สมาร์ทบอร์ด , กระดาษทราย
ขั้นตอนการติดตั้ง
*กรณีแตกหักเสียหายน้อย (รอยแตกเล็กกว่า 2 ซม.)
วันพุธที่ 15 เมษายน พ.ศ. 2558
การติดตั้งผนังดัดโค้ง : ฝาผนังดัดโค้ง
การติดตั้งฝา-ผนัง ดัดโค้ง งอ ด้วยแผ่นไฟเบอร์ซีเมนต์ ตราช้าง สมาร์ทบอร์ด
โครงคร่าวและอุปกรณ์
โครงคร่าว : โครงกลัวาไนซ์ ซี 74 , ยู 76 ตราช้าง สมาร์ทบอร์ด
อุปกรณ์ยึด : ตะปูเกลียว ตราช้าง ปลายแหลม 23 มม.
ตราช้าง สมาร์ทบอร์ด : ขอบเรียบ หนา 8 มม.
ขั้นตอนการติดตั้ง
ผนัง ตราช้าง สมาร์ทบอร์ดมีความยืดหยุน สามารถดัดโค้งได้โดยไม่ต้องลูบน้ำ โดยติดตั้งตามโครงที่ดัดโค้งไว้
โครงคร่าวและอุปกรณ์
โครงคร่าว : โครงกลัวาไนซ์ ซี 74 , ยู 76 ตราช้าง สมาร์ทบอร์ด
อุปกรณ์ยึด : ตะปูเกลียว ตราช้าง ปลายแหลม 23 มม.
ตราช้าง สมาร์ทบอร์ด : ขอบเรียบ หนา 8 มม.
ขั้นตอนการติดตั้ง
ผนัง ตราช้าง สมาร์ทบอร์ดมีความยืดหยุน สามารถดัดโค้งได้โดยไม่ต้องลูบน้ำ โดยติดตั้งตามโครงที่ดัดโค้งไว้
การติดตั้งผนังภายในฉาบเรียบ
การติดตั้งฝาผนังภายใน แบบฉาบเรียบ สำหรับแผ่นไฟเบอร์ซีเมนต์ ตราช้าง สมาร์ทบอร์ด
โครงคร่าวและอุปกรณ์
โครงคร่าว : โครงกัลวาไนซ์ ซี 74 , ยู 76 ตราช้าง สมาร์ทบอร์ด
อุปกรณ์ยึด : ตะปูเกลียว ตราช้าง ปลายแหลม 23 มม. ตะปูเกลียว ตราช้าง ปลายแหลม 10 มม.
ตราช้าง สมาร์ทบอร์ด : ขอบลาด 2 ด้าน หนา 8 มม. ขนาด 120x280 ซม.
ขั้นตอนการติดตั้ง
ขั้นตอนการติดตั้งเช่นเดียวกับการติดตั้งผนังเว้นร่องภายใน แต่โครงคร่าวไม่ต้องเสริมเพิ่มบริเวณรอยต่อแผ่น
โครงคร่าวและอุปกรณ์
โครงคร่าว : โครงกัลวาไนซ์ ซี 74 , ยู 76 ตราช้าง สมาร์ทบอร์ด
อุปกรณ์ยึด : ตะปูเกลียว ตราช้าง ปลายแหลม 23 มม. ตะปูเกลียว ตราช้าง ปลายแหลม 10 มม.
ตราช้าง สมาร์ทบอร์ด : ขอบลาด 2 ด้าน หนา 8 มม. ขนาด 120x280 ซม.
ขั้นตอนการติดตั้ง
ขั้นตอนการติดตั้งเช่นเดียวกับการติดตั้งผนังเว้นร่องภายใน แต่โครงคร่าวไม่ต้องเสริมเพิ่มบริเวณรอยต่อแผ่น
วันอังคารที่ 14 เมษายน พ.ศ. 2558
การติดตั้งผนัง : ติดตั้งผนังภายในเว้นร่อง , ฝาผนังภายใน
การติดตั้งผนังภายในเว้นร่อง ติดตั้งแผ่นไฟเบอร์ซีเมนต์ ตราช้าง สมาร์ทบอร์ด ฝาผนังภายใน
โครงคร่าวและอุปกรณ์
โครงคร่าว : โครงกัลวาไนซ์ ซี 74 ,ยู76 ตราช้าง สมาร์ทบอร์ด
อุปกรณ์ยึด : ตะปูเกลียว ตราช้าง ปลายแหลม 23 มม.
อุปกรณ์ฉาบรอยต่อ : กาวยาแนวโพลิยูริเทน ตราช้าง สมาร์ทบอร์ด
ตราช้าง สมาร์ทบอร์ด : ขอบเรียบ หนา 8 มม. มีขนาด คือ 120x240 ซม. และ 120x280 ซม.
เซาะร่อง 4 นิ้ว หนา 8 มม. ขนาด 120x280 ซม.
เซาะร่อง 6 นิ้ว ลายไม้สีสักทอง หนา 6,8 มม. ขนาด 60x300 ซม.
ขั้นตอนการติดตั้ง
โครงคร่าวและอุปกรณ์
โครงคร่าว : โครงกัลวาไนซ์ ซี 74 ,ยู76 ตราช้าง สมาร์ทบอร์ด
อุปกรณ์ยึด : ตะปูเกลียว ตราช้าง ปลายแหลม 23 มม.
อุปกรณ์ฉาบรอยต่อ : กาวยาแนวโพลิยูริเทน ตราช้าง สมาร์ทบอร์ด
ตราช้าง สมาร์ทบอร์ด : ขอบเรียบ หนา 8 มม. มีขนาด คือ 120x240 ซม. และ 120x280 ซม.
เซาะร่อง 4 นิ้ว หนา 8 มม. ขนาด 120x280 ซม.
เซาะร่อง 6 นิ้ว ลายไม้สีสักทอง หนา 6,8 มม. ขนาด 60x300 ซม.
ขั้นตอนการติดตั้ง
การติดตั้งพื้น ด้วยแผ่นไฟเบอร์ซีเมนต์ ตราช้าง สมาร์ทบอร์ด
การติดตั้งแผ่นพื้น ด้วยบอร์ดไฟเบอร์ซีเมนต์ ตราข้าง สมาร์ทบอร์ด
โครงคร่าวและอุปกรณ์
โครงคร่าว : ตงเหล็กรูปพรรณ
อุปกรณ์ยึด : ตะปูเกลียว ตราช้าง ปลายสว่าน 45 มม.
วัสดุปิดรอยต่อ : กัมกรีต ตราช้าง
ตราช้าง สมาร์ทบอร์ด : ขอบเรียบ หนา 16 - 18 มม.
การเตรียมงาน
1.เตรียมโครงสร้างเพื่อรองรับแผ่นพื้น ตราช้าง สมาร์ทบอร์ด โดยให้ขนาดและระยะห่างโครงคร่าวสามารถรับน้ำหนักได้อย่างปลอดภัย ตามการออกแบบของวิศวกรสำคัญ หรือสามารถเลือกขนาดและระยะห่างโครงคร่าวโดยประมาณจากตาราง
โครงคร่าวและอุปกรณ์
โครงคร่าว : ตงเหล็กรูปพรรณ
อุปกรณ์ยึด : ตะปูเกลียว ตราช้าง ปลายสว่าน 45 มม.
วัสดุปิดรอยต่อ : กัมกรีต ตราช้าง
ตราช้าง สมาร์ทบอร์ด : ขอบเรียบ หนา 16 - 18 มม.
การเตรียมงาน
1.เตรียมโครงสร้างเพื่อรองรับแผ่นพื้น ตราช้าง สมาร์ทบอร์ด โดยให้ขนาดและระยะห่างโครงคร่าวสามารถรับน้ำหนักได้อย่างปลอดภัย ตามการออกแบบของวิศวกรสำคัญ หรือสามารถเลือกขนาดและระยะห่างโครงคร่าวโดยประมาณจากตาราง
วันจันทร์ที่ 13 เมษายน พ.ศ. 2558
การติดตั้งผนัง : ติดตั้งผนังภายนอกเว้นร่อง , ฝาผนังภายนอก
การติดตั้งฝาผนังภายนอกแบบเว้นร่อง แผ่นไฟเบอร์ซีเมนต์ ตราช้าง สมาร์ทบอร์ด
ติดตั้งผนังภายนอกเว้นร่อง
โครงคร่าวและอุปกรณ์
โครงคร่าว : เหล็กรูปพรรณตัวซี ขนาด 75x45x15x2.3 มม.
อุปกรณ์ยึด : ตะปูเกลียว ตราช้าง ปลายสว่าน มีปีก 32 มม. ตะปูเกลียว ตราช้าง ปลายสว่าน 45 มม.(สำหรับสมาร์ทบอร์ดความหนา 16 มม.)
อุปกรณ์ยาแนวรอยต่อ : กาวยาแนวโพลียูริเทน ตราช้าง สมาร์ทบอร์ด
อุปกรณ์ปิดมุม : แผ่นปิดมุมซีเมนต์ ตราช้าง
ตราช้าง สมาร์ทบอร์ด : ขอบเรียบ หนา 8-16 มม.
ขั้นตอนการติดตั้ง
การติดตั้งฝ้าดัดโค้ง ฝ้า-เพดานแบบดัดโค้ง
การติดตั้งฝ้า-เพดาน แบบดัดโค้ง   กับแผ่นไฟเบอร์ซีเมนต์ สมาร์ทบอร์ด ตราช้าง
โครงคร่าวและอุปกรณ์
โครงคร่าว : โครงคร่าวเหล็กชุบสังกะสีซีลายน์ เบอร์ 24
อุปกรณ์ยึด : ตะปูเกลียว ตราช้าง ปลายแหลม 23 มม.
ตราช้าง สมาร์ทบอร์ด : ขอบเรียบหรือขอบลาด ความหนา 4 มม. หรือ 6 มม.
ขั้นตอนการติดตั้ง (ขั้นตอนการติดตั้งโครงคร่าวให้เป็นไปตามคำแนะนำผู้ผลิตโครงคร่าว)
โครงคร่าวและอุปกรณ์
โครงคร่าว : โครงคร่าวเหล็กชุบสังกะสีซีลายน์ เบอร์ 24
อุปกรณ์ยึด : ตะปูเกลียว ตราช้าง ปลายแหลม 23 มม.
ตราช้าง สมาร์ทบอร์ด : ขอบเรียบหรือขอบลาด ความหนา 4 มม. หรือ 6 มม.
ขั้นตอนการติดตั้ง (ขั้นตอนการติดตั้งโครงคร่าวให้เป็นไปตามคำแนะนำผู้ผลิตโครงคร่าว)
การติดตั้งแผ่นไฟเบอร์ซีเมนต์เป็นแผ่นรองพื้น
การติดตั้งเป็นแผ่นรองพื้น ด้วยแผ่นไฟเบอร์ซีเมนต์ ตราช้าง สมาร์ทบอร์ด
อุปกรณ์และเครื่องมือ
อุปกรณยึด : ตะปูตอกคอนกรีต ยาว 1 นิ้ว สำหรับ ตราช้าง สมาร์ทบอร์ด 8 มม.
ตะปูตอกคอนกรีต ยาว 1.5 นิ้ว สำหรับ ตราช้าง สมาร์ทบอร์ดหนา 10 มม ขั้นไป,กาวลาเทกซ์
ตราช้าง สมาร์ทบอร์ด : ขอบเรียบ หนา 8 - 12 มม.
ขั้นตอนการติดตั้ง
อุปกรณ์และเครื่องมือ
อุปกรณยึด : ตะปูตอกคอนกรีต ยาว 1 นิ้ว สำหรับ ตราช้าง สมาร์ทบอร์ด 8 มม.
ตะปูตอกคอนกรีต ยาว 1.5 นิ้ว สำหรับ ตราช้าง สมาร์ทบอร์ดหนา 10 มม ขั้นไป,กาวลาเทกซ์
ตราช้าง สมาร์ทบอร์ด : ขอบเรียบ หนา 8 - 12 มม.
ขั้นตอนการติดตั้ง
วันอาทิตย์ที่ 12 เมษายน พ.ศ. 2558
การติดตั้งฝ้าทีบาร์ ฝ้า-เพดาน แบบทีบาร์
การติดตั้งฝ้าทีบาร์ สำหรับแผ่นไฟเบอร์ซีเมนต์ ตราช้าง สมาร์ทบอร์ด 
โครงคร่าวและอุปกรณ์
โครงคร่าว : เหล็กชุบสังกะสีทีบาร์ รุ่นสันโครงสูง 38 มม.
อุปกรณ์ยึด : พุกพลาสติก ตราช้าง 37มม. และ ตะปูเกลียว ตราช้าง ปลายแหลม 38 มม.
ตราช้าง สมาร์ทบอร์ด : ขอบเรียบ ความหนา 3.5 , 4 และ 6 มม. ตัดให้ได้ขนาด 60x120 ซม. หรือ 60x60ซม.
ขั้นตอนการติดตั้ง (ขั้นตอนการติดตั้งโครงคร่าว ให้เป็นไปตามคำแนะนะผู้ผลิตโครงคร่าว)
โครงคร่าวและอุปกรณ์
โครงคร่าว : เหล็กชุบสังกะสีทีบาร์ รุ่นสันโครงสูง 38 มม.
อุปกรณ์ยึด : พุกพลาสติก ตราช้าง 37มม. และ ตะปูเกลียว ตราช้าง ปลายแหลม 38 มม.
ตราช้าง สมาร์ทบอร์ด : ขอบเรียบ ความหนา 3.5 , 4 และ 6 มม. ตัดให้ได้ขนาด 60x120 ซม. หรือ 60x60ซม.
ขั้นตอนการติดตั้ง (ขั้นตอนการติดตั้งโครงคร่าว ให้เป็นไปตามคำแนะนะผู้ผลิตโครงคร่าว)
สมัครสมาชิก:
ความคิดเห็น (Atom)




